Italiano
120.000 €

Tribunale Roma - Ruolo1067/2023 - Lotto U - asta 04/12/2025

Villa in vendita • Roma - Via Giovanni Becatti 32
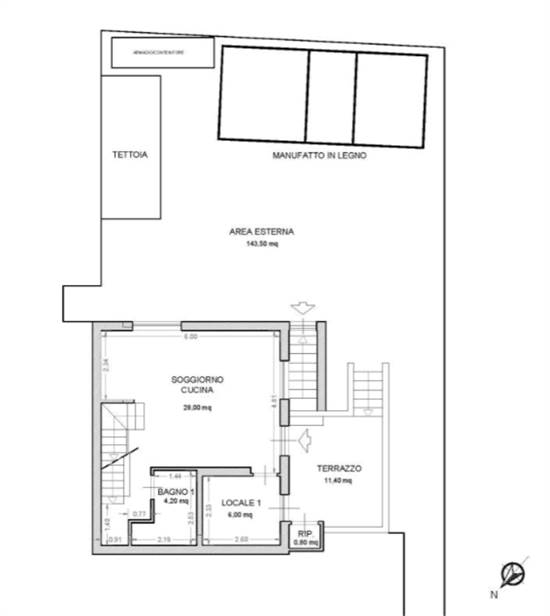
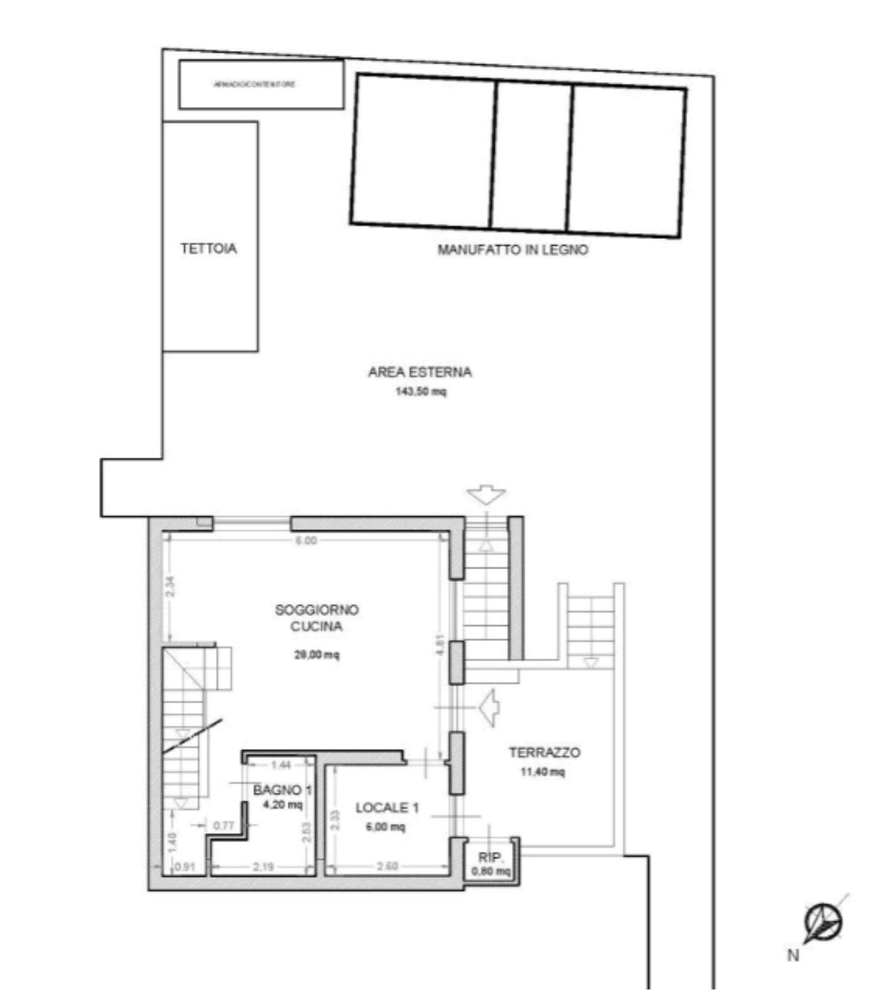
BENE N. 1: Quota pari a 100/100 (1/1) del diritto di piena proprietà sull’immobile sito in Roma (Ostia Antica) Via Giovanni Becatti, n. 32, Villino con annessa area di pertinenza esterna, dislocantesi ai Piani S1–T–1, direttamente collegati tramite scale interne, attualmente suddiviso in due distinte unità immobiliari a destinazione residenziale. IDENTIFICATIVI CATASTALI: N.C.E.U. del Comune di Roma, Foglio 1068 Particella 1610 Subalterni 9 e 3 graffati, Zona Cens. 6 Categoria A/7 Classe 5 Consistenza 3 vani Superficie catastale Totale 63 mq. Escluse areee scoperte 63 mq. Piani S1-T-1 Rendita €. 526,79. CONFINI: l’immobile confina con due unità immobiliari, villini con annesse aree esterne di pertinenza, di proprietà di terzi distinte al Catasto Fabbricati con Fg. 1068, part. 1610, sub. 8 (villino), sub. 2 (area esterna) e sub 10 (villino), sub 4 (area esterna). Il bene immobile, inoltre, si "affaccia" a Nord-Ovest su via G. Becatti, mentre a Sud-Ovest ed a Sud-Est confina con il distacco dei fabbricati adiacenti. DESCRIZIONE: l’immobile si sviluppa in una porzione del piano seminterrato, al piano terra ed al piano primo, presentando una superficie interna calpestabile di 96,90 mq, è così distribuita: al Piano Terra (rialzato), n. 1 Soggiorno/Cucina (28,00 mq); n. 1 Locale Ripostiglio (6,00 mq); n. 1 Bagno 1 (4,20 mq); al Piano seminterrato, n. 1 Disimpegno (1,80 mq); n. 1 Camera 1 (10,50 mq); al Piano primo, n. 1 Disimpegno (3,00 mq); n. 1 Camera 2 (22,00 mq); n. 1 Camera 3 (15,50 mq); n. 1 Bagno 2 (5,50 mq). L'altezza interna utile è differente nei diversi piani. L'unità immobiliare è provvista al piano terra rialzato di un terrazzo coperto, pavimentato, cui si accede dal soggiorno/cucina e dal locale ripostiglio e caratterizzato da una superficie calpestabile pari a 11,40 mq. ; in prossimità della porta finestra del locale ripostiglio si rileva un piccolo locale adibito a ripostiglio, cui si accede dal terrazzo esterno, con superficie interna calpestabile pari a 0,80 mq. La seconda unità immobiliare si sviluppa in una porzione del piano seminterrato, presenta una superficie interna calpestabile di 46,00 mq, ed è così distribuita: n. 1 Soggiorno con angolo cottura (22,50 mq); n. 1 Camera 1 (16,10 mq); n. 1 Bagno 1 (6,50 mq). L'immobile presenta un’altezza interna utile pari a ml. 2,40 in tutti gli ambienti del piano seminterrato. Ad esso si accede tramite un portoncino blindato posto in un disimpegno che sviluppa una superficie calpestabile di circa 1,20 mq., nel quale v’è un ripostiglio di una superficie pari a 3,20 mq. Il villino è provvisto al piano terra di un’area esterna di pertinenza, pavimentata, caratterizzata da una superficie calpestabile pari a 143,50, nella porzione a sud-ovest di tale area esterna di pertinenza si rileva la presenza di un manufatto in legno, adibito attualmente a deposito attrezzi, suddiviso in tre vani con superficie interna calpestabile di 8,80 mq, 4,80 mq e 7,10 mq. Tale manufatto è affiancato da un “armadio/contenitore” in metallo, a ridosso del muro perimetrale dell’area esterna rivolto a sud-est. Sempre nell’area esterna di pertinenza, ad est rispetto al suddetto manufatto in legno, si rileva inoltre la presenza di una tettoia con struttura in metallo e copertura in plexiglass.
Caratteristiche principali
Codice
Tribunale Roma - Ruolo1067/2023 -
Città/Comune
Roma
Categoria
Villa
Prezzo
120.000 €
Locali
6
Mq
142
Classe energetica
In fase di valutazione
Mappa
Via Giovanni Becatti 32 , Roma (RM)
Richiedi informazioni
Invia
Condividi su
Cookie preference
whatsapp blogger rivista-digitale