Toggle navigation
Home
Aste
Chi siamo
Servizi
Contatti
Previous
Next
390.000 €
Tribunale Milano - Ruolo 860/2021 - Lotto U - asta 27/11/2025
Appartamento in vendita • Milano - Viale Lombardia, 27
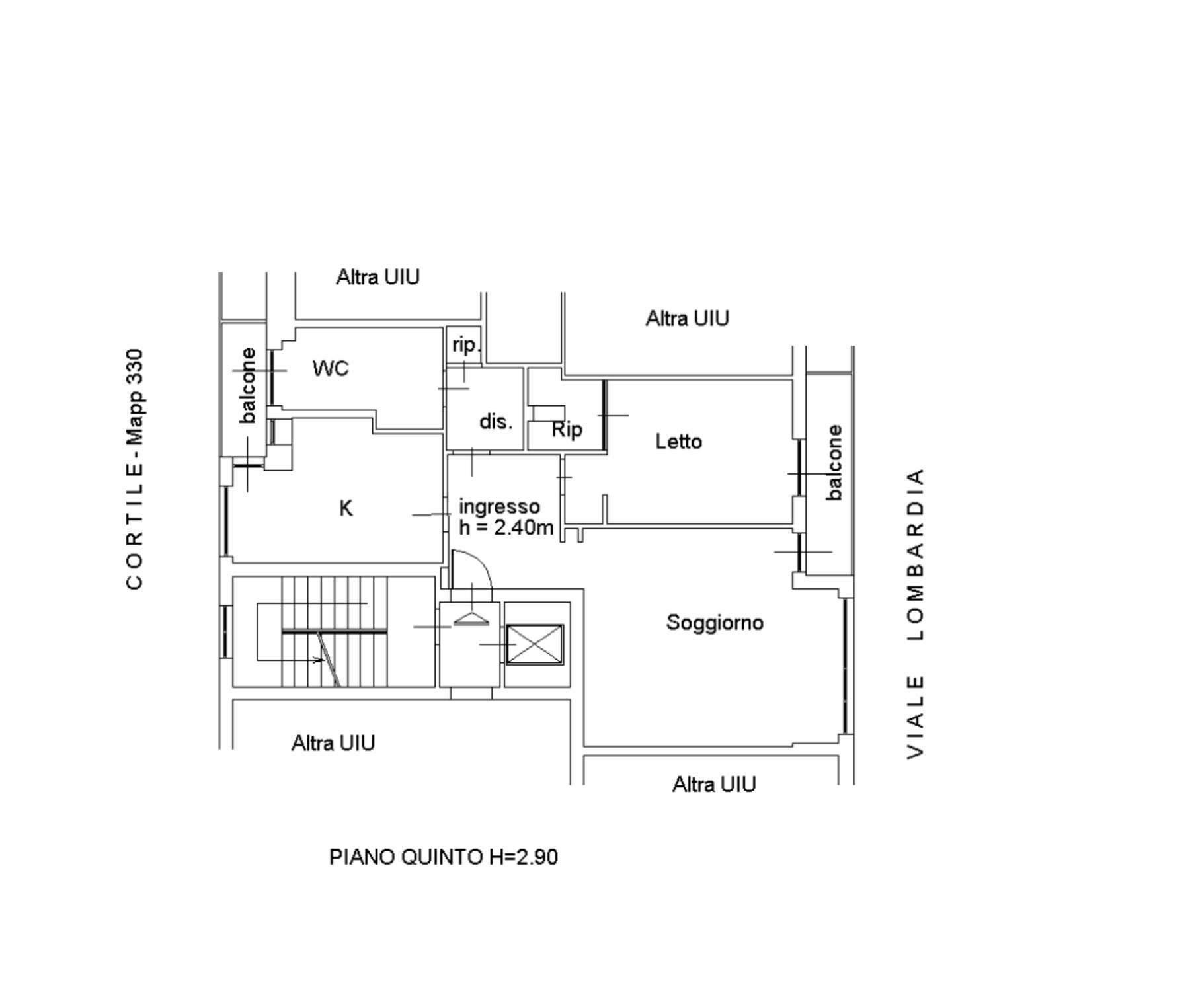
appartamento al piano quinto di 5 vani con cantina.
ASTASERVICE E’ UNA SOCIETA’ CHE SI OCCUPA DI ASSISTENZA E CONSULENZA ALL’ACQUISTO DI IMMOBILI PROVENIENTI DA ASTE DI OGNI SETTORE, SIAMO DEI DELEGATI PROCURATORI , CI OCCUPIAMO DI ASTE E PRE-ASTE.
Caratteristiche principali
Codice
Tribunale Milano - Ruolo 860/2021 - Lotto U
Città/Comune
Milano
Categoria
Appartamento
Prezzo
390.000 €
Locali
5
Mq
96
Classe energetica
In fase di valutazione
Mappa
Viale Lombardia, 27 , Milano (MI)
Foto • Planimetrie • Video
Foto
Richiedi informazioni
Nominativo *
Telefono *
Email *
Dettagli richiesta *
Autorizzo il trattamento dei miei dati personali in base al Regolamento UE n. 679/2016 -
Privacy Policy
Autorizzo al trattamento dei dati per finalità di marketing, attività promozionali, offerte commerciali ed indagini di mercato.
Invia
Condividi su
Ti consigliamo anche
In Vendita
Tribunale Milano Ruolo 49/2024 -Lotto U - asta 18/12/2025
138.000 €
In Vendita
Tribunale di Milano - Ruolo 831/2018 - Lotto U - asta 20/11/2025
117.600 €
In Vendita
Tribunale Milano - Ruolo 718/2024 - Lotto U - asta 20/11/2025
28.500 €
Mantieni impostazioni di default X
Uso dei cookies
Questo sito fa uso di cookies. I nostri cookies (propri) e quelli dei nostri Partners (cookies di terzi) servono per poterti offrire un'esperienza unica con noi. Per questo motivo, insieme ai nostri partners, raccogliamo e processiamo informazioni non sensibili (come l'identificatore del tuo dispositivo o le pagine che visiti).
In qualsiasi momento potrai eliminare, modificare o verificare le informazioni che condividi in
Cookie preference
o nella nostra
Cookie Policy
e
Privacy Policy
.
Necessari
Funzionali
Profilazione
Analitici
Accetta tutti
Rifiuta tutti
Accetta selezionati
Cookie preference