Italiano
117.600 €

Tribunale di Milano - Ruolo 831/2018 - Lotto U - asta 20/11/2025

Appartamento in vendita • Milano - Via ponte del giuscano n.8
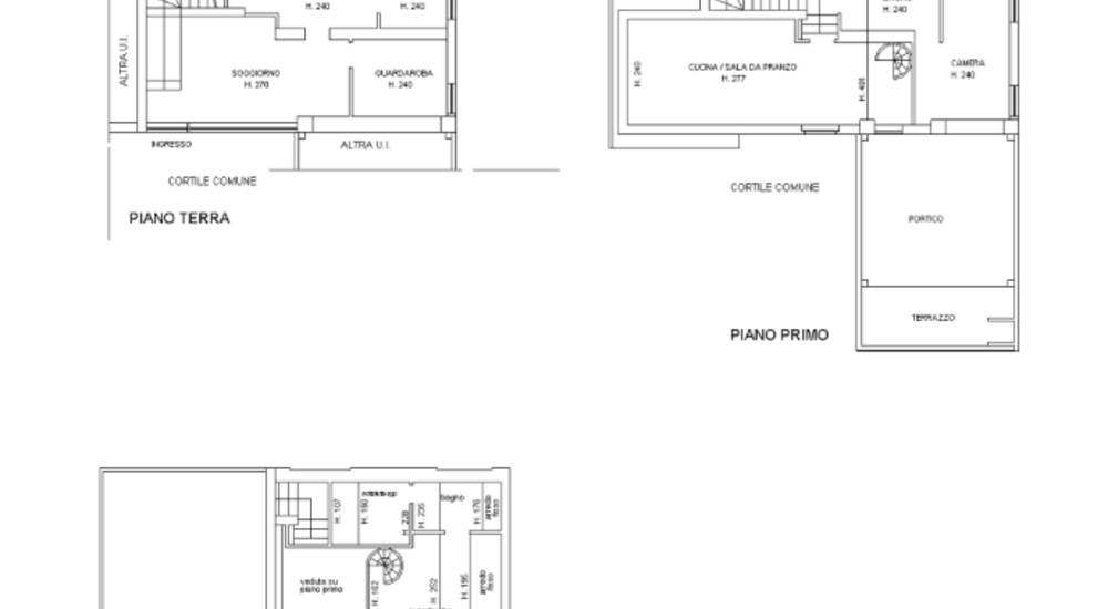
Abitazione su tre livelli composto da soggiorno, due locali deposito e bagno al piano terra, da cucina, soggiorno, camera, bagno e due terrazze di mq 44,00 al piano primo, da camera e bagno al piano soppalcato sottotetto.
Caratteristiche principali
Codice
Tribunale di Milano - Ruolo 831/2018 - Lotto U
Città/Comune
Milano
Categoria
Appartamento
Prezzo
117.600 €
Locali
5
Mq
169
Classe energetica
In fase di valutazione
Mappa
Via ponte del giuscano n.8 , Milano (MI)
Richiedi informazioni
Invia
Condividi su
Cookie preference
whatsapp blogger rivista-digitale