Italiano
50.220 €

Tribunale Ragusa - Ruolo 27/2025 - Lotto 2 - asta 10/02/2026

Stabile / Palazzo in vendita • Santa Croce Camerina - Via Peloritani 1
Via Peloritani , 1 97017 Santa Croce Camerina RG
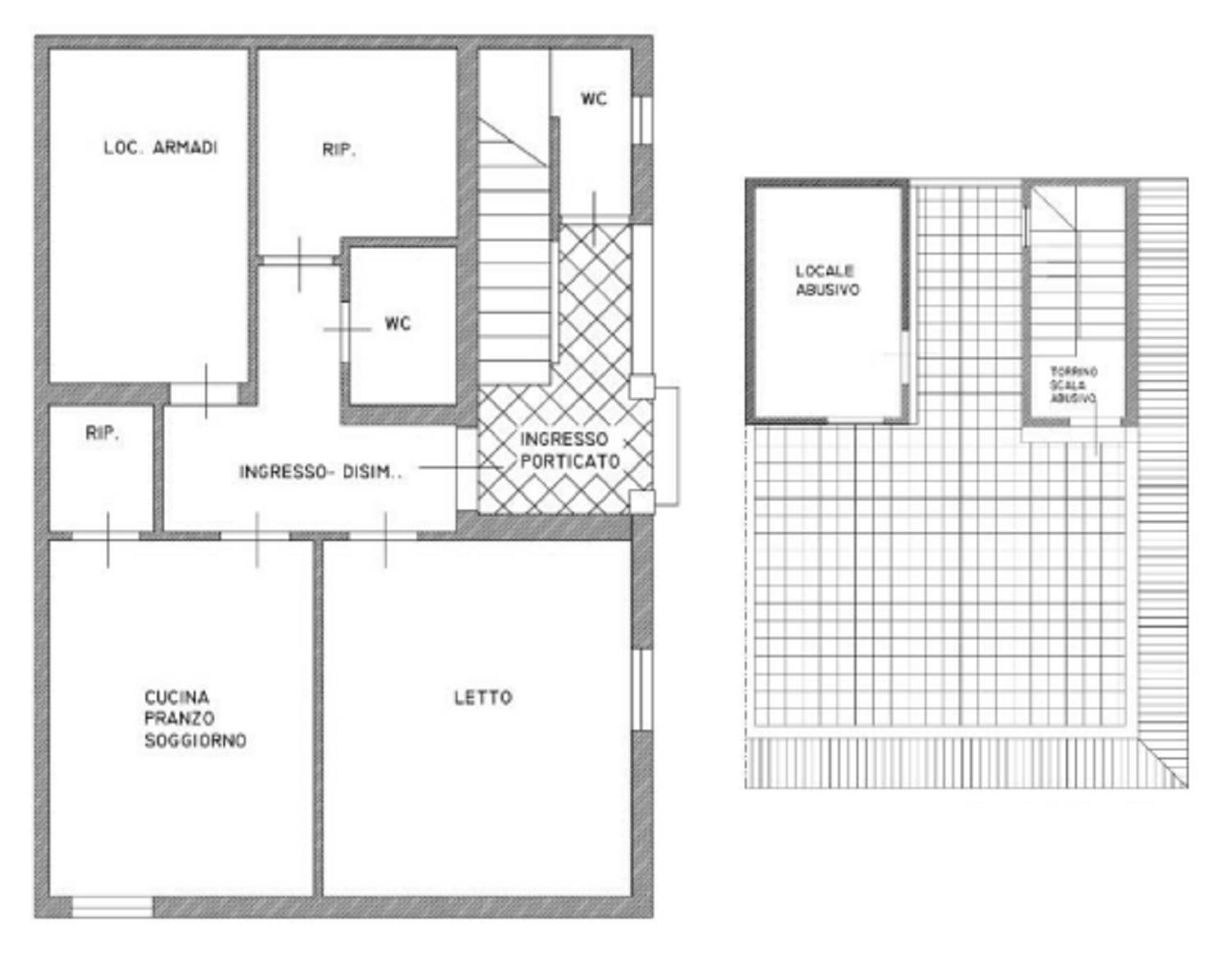
Immobile per civile abitazione al piano primo di un fabbricato Condominiale a copertura piana con lastrico solare (sub 3)accessibile e in comune con il sub 1 (posto a piano terra), sito in Santa Croce Camerina, località Casuzze, Via Peloritani ad angolo con la Via Sila, con ingresso dal portico condominiale di Via Peloritani 1.
Caratteristiche principali
Codice
Tribunale Ragusa - Ruolo 27/2025 - Lotto 2
Città/Comune
Santa Croce Camerina
Categoria
Stabile / Palazzo
Prezzo
50.220 €
Locali
3,5
Mq
65
Classe energetica
In fase di valutazione
Mappa
Via Peloritani 1 , Santa Croce Camerina (RG)
Richiedi informazioni
Invia
Condividi su
Cookie preference
whatsapp blogger rivista-digitale