Italiano
87.000 €

Tribunale Napoli - Ruolo 317/2024 - Lotto U - asta 03/03/2026

Stabile / Palazzo in vendita • Bacoli - Via Dragonara, 23
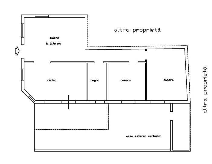
Diritto di piena e intera proprietà dell’appartamento indipendente posto al piano terra ubicato in Bacoli (Na) alla Via Dragonara n. 23 (catastalmente via Dragonara n. 19); composto da salone, cucina, corridoio, n. camere e bagno con annessa area esterna;
Caratteristiche principali
Codice
Tribunale Napoli - Ruolo 317/2024 - Lotto U
Città/Comune
Bacoli
Categoria
Stabile / Palazzo
Prezzo
87.000 €
Locali
5
Mq
96
Classe energetica
In fase di valutazione
Mappa
Via Dragonara, 23 , Bacoli (NA)
Richiedi informazioni
Invia
Condividi su
Cookie preference
whatsapp blogger rivista-digitale