Italiano
167.625 €

Tribunale Lodi - Ruolo 78/2022 - Lotto U - asta 11/03/2026

Duplex in vendita • Lodi - VIALE LIGURIA N.1/B
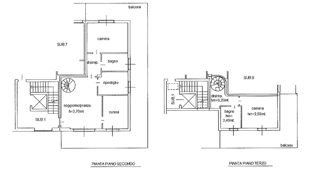
Piena proprietà di unità immobiliare, sita in Comune di Lodi (LO) , Viale Liguria n.1/B, posta al piano secondo e terzo, facente parte di un fabbricato residenziale, composta da tre locali con cucina, due servizi ed accessori e all'unità, al piano interrato, è abbinato un locale cantina. Il compendio immobiliare risulta occupato, come da perizia. L'unità immobiliare risulta identificata in catasto: Foglio 64, mappale 224, subalterno 8, categoria A/2 come meglio descritto nella perizia cui si rinvia per gli ulteriori dettagli anche catastali relativi all'immobile.
appartamento posto al piano secondo e terzo , facente parte di un fabbricato residenziale e composto da tre locali con cucina, due servizi e accessori e al piano interrato un locale cantina e due box, come meglio descritti in perizia, cui si rinvia integralmente anche per tutti gli ulteriori dettagli, anche catastali. Il compendio immobiliare risulta occupato, come da perizia.
Caratteristiche principali
Codice
Tribunale Lodi - Ruolo 78/2022 - Lotto U
Città/Comune
Lodi
Categoria
Duplex
Prezzo
167.625 €
Locali
4
Mq
129
Classe energetica
In fase di valutazione
Mappa
VIALE LIGURIA N.1/B , Lodi (LO)
Richiedi informazioni
Invia
Condividi su
Cookie preference
whatsapp blogger rivista-digitale