Italiano
50.580 €

Tribunale di Lucca - Ruolo 133/2024 - Lotto U - asta 02/12/2025

Appartamento in vendita • Barga (Fornaci di Barga) - Via della Repubblica 46
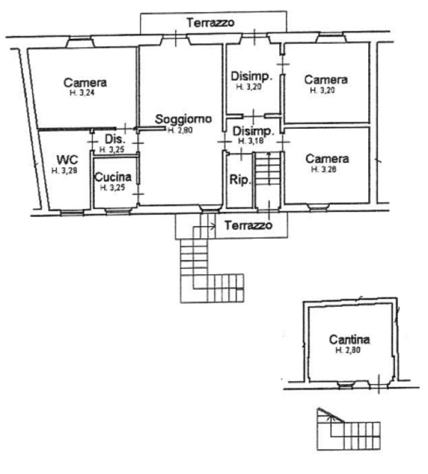
Unità immobiliare terra tetto disposta su due livelli di mq.100,95
Caratteristiche principali
Codice
Tribunale di Lucca - Ruolo 133/2024 - Lotto U
Città/Comune
Barga (Fornaci di Barga)
Categoria
Appartamento
Prezzo
50.580 €
Locali
7,5
Mq
100
Classe energetica
G
Mappa
Via della Repubblica 46 , Barga (LU)
Richiedi informazioni
Invia
Condividi su
Cookie preference
whatsapp blogger rivista-digitale