Italiano
19.200 €

Tribunale Cassino - Ruolo 83/2020 - Lotto 1 - asta 13/11/2025

Appartamento in vendita • Pontecorvo - VIA GRAMSCI N.12
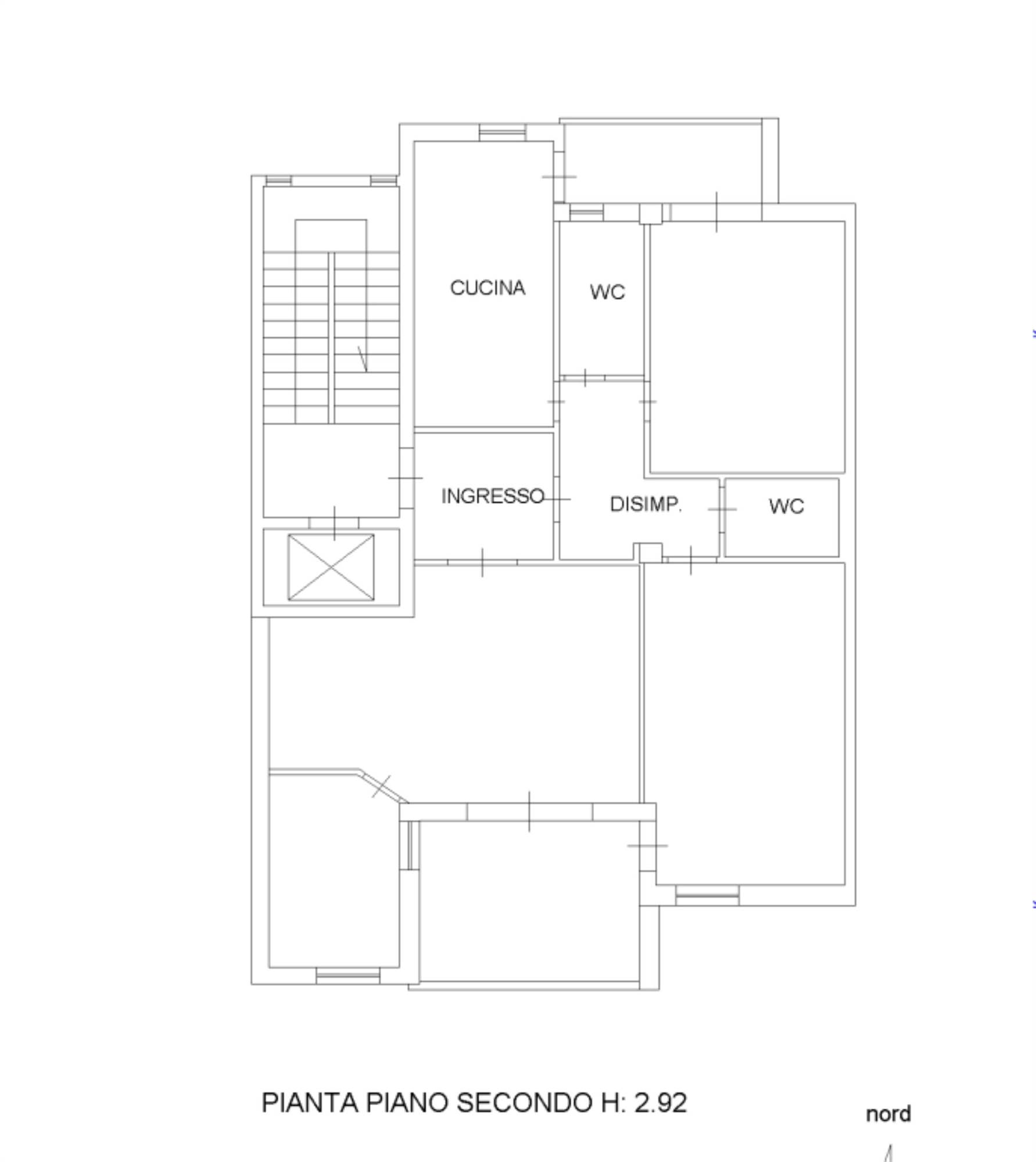
APPARTAMENTO PER CIVILE ABITAZIONE SITO NEL COMUNE DI PONTECORVO (FR) - VIA GRAMSCI SNC – LOC. SUD FORMELLE (IN CATASTO AL FOGLIO N. 17, PARTICELLA N. 271 SUB 79) Superficie convenzionale complessiva: 114,06 mq Trattasi di appartamento per civile abitazione, sito al piano secondo (Scala B - int. 3) della palazzina plurifamiliare ubicata in Via Gramsci Snc (edificio 6), della consistenza di 6,5 vani, composto da ingresso, cucina, disimpegno, n. 3 camere, doppio servizio e balconi. L’accesso all’appartamento avviene dalla scala condominiale del fabbricato, che serve complessivamente n.12 appartamenti. L'unità immobiliare è sita del Comune di Pontecorvo, in zona urbana distante circa 1.0 Km dal centro cittadino e circa quattro chilometri dal casello dell’autostrada A1 Roma/Napoli. L’area all’interno della quale è ubicato il fabbricato è in parte recintata e dotata di area a parcheggio.
Caratteristiche principali
Codice
Tribunale Cassino - Ruolo 83/2020 - Lotto 1
Città/Comune
Pontecorvo
Categoria
Appartamento
Prezzo
19.200 €
Locali
65
Mq
114,06
Classe energetica
In fase di valutazione
Mappa
VIA GRAMSCI N.12 , Pontecorvo (FR)
Richiedi informazioni
Invia
Condividi su
Cookie preference
whatsapp blogger rivista-digitale